中文

中文EN

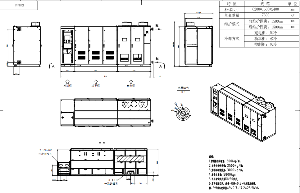
DFD-SVG-(10~35kV)降压式高压动态无功补偿装置

DFD-SVG-(10~35kV)降压式高压动态无功补偿装置

本工程装设容量为4Mvar/6kV动态无功补偿装置2套,装置主要包括:一套额定容量的大功率可关断电力电子器件组成的逆变器为其核心部分的DFD-SVG型静止无功发生器成套装置,并配备相应的自动控制监控和保护系统等。 成套装置应满足无功功率、电压调节、功率因数及谐波治理等技术要求,并要求达到以下技术指标: 1)输出容量 成套装置以母线侧功率因数,或母线电压作为控制目标,SVG装置额定补偿容量为-4Mvar额定容量(容性无功)~+4Mvar额定容量(感性无功)范围内连续平滑调节。 2)响应时间 SVG装置可动态跟踪电网电压变化,并根据变化情况动态调节无功输出,实现稳定电压的作用。动态响应时间不大于5ms。 3)过载能力 成套装置应具有短时过载能力,过载无功补偿容量为成套装置额定容量的110%长期运行;过载无功补偿容量为成套装置额定容量的120%、时间持续1分钟保护停机。 4)冷却方式 成套装置采用强迫风冷,技术先进、运行安全可靠,适应现场环境。 5)功率因数 补偿容量足够且有功功率大于0.2MW的前提下,母线经补偿后其月平均功率因数大于等于0.95(该功率因数在人机界面可设置),且不会出现过补偿。 6)输入电压范围 输入电压允许变化范围为额定电压的90%-115%。 7)输入频率范围 输入频率允许变化范围48-51Hz。 8)低电压穿越功能 满足中华人民共和国国家标准《GB/T 19964 2012光伏发电站接入电力系统技术规定》的要求。

    采用先进的全控型器件IGBT,装置主回路元件的选用应留有足够的电流、电压裕度。

    额定频率: 50Hz

    额定容量: ±4 Mvar

    额定电压: 6kV

    容量调节范围:从额定感性容量到额定容性容量连续可调

    冷却方式: 强迫风冷

    损耗: <1.2%(额定工况)

    谐波特性: <3%(额定工况)

    响应速度: 15Mvar及以下不大于5ms,15Mvar以上不大于10ms

Product Features

产品特点

1)控制屏的结构及组成

控制屏采用柜式结构,表面采用静电喷塑工艺处理。柜体选用优质 “三防”产品,抗强电磁干扰能力强。信号传输通道中用的光纤及附件采用进口优质产品。其它控制系统中的附件,如各类集成电路等都采用国外的知名公司产品。

控制系统由主控机箱、人机界面等几个主要部分组成。各部分应实现以下功能:

主控机箱:由各功能板卡组成。具有自主知识产权及专利的全数字化控制器,用DSP+FPGA组成的控制核心,充分发挥DSP超强的计算能力和FPGA出色的数据处理能力,实时计算电网所需的无功功率,动态跟踪与补偿,实现了准确计算,高速响应,精确补偿的效果。

人机界面:实时显示系统运行状态和数据,查询与设定系统运行参数以及整机逻辑控制等功能;操作简单方便,界面友好,是一个人机交互的窗口。

2)主控制器的基本功能

成套装置控制系统可根据系统电压/无功的变化情况,实现脉冲发生和分配功能,自动调节装置无功输出;成套装置具有供值班员使用的参数设置功能,所有设置的内容不受停电和干扰信号的影响。

3) 通讯功能

控制系统具有和上位机通讯的标准化接口,实现就地和远方通讯。同时控制系统具备与变电站综合自动化联网的功能,卖方提供的SVG控制系统采用RS485或以太网通讯方式,RS485接口可支持MODBUS通讯协议,电力CDT通讯规约,以太网通讯协议为IEC/104。

4)显示功能

控制系统采用液晶显示器,具有友好的人机界面,数据保存6个月以上。可提供如下功能:

主回路图;

实时电量参数显示(电压、电流、功率因数等);

实时曲线和历史曲线(电流、电压、功率);

历史事件记录(故障记录、操作记录、停机原因记录);

运行数据记录;

故障录波;

无功阶跃录波;

电压阶跃录波;

在线电能监测功能;

链式装置单元状态监视;

软件版本查询;

HMI存储空间查询;

显示当前时间、保护动作时间,显示保护类型、保护动作时间等信息。

5)保护功能

动态无功补偿装置应采用了综合保护策略,以提高装置可靠性。

动态装置保护类型如下:母线过压、母线欠压、过流、速断、直流过压、电力电子元件损坏检测保护、丢脉冲、触发异常、过压击穿、单元模块功率柜超温、保护输入接口、保护输出接口控制和系统电源异常等保护功能。

6)闭锁功能

控制器具有CT断线检测及闭锁调节功能。

控制器具有PT断线检测及闭锁调节功能。


控制器内部电路具有完善的保护功能,内部出现任何电路故障均不会有误动作输出。

SVG开关跳闸时,报警并闭锁主控制器的无功出口。

7)事件顺序记录

当各类保护动作或监视的状态发生变化时,控制系统将自动记录事件发生的类型、相别及动作值,事件按顺序记录,可通过人机界面进行查询,并通过远程通信上传至终端。动作次数可永久保存,即使掉电也不丢失。

Technical Parameters

产品描述

箱体结构要求

(1)箱体外形一般线性公差按GB1804-C级。

(2)箱体防护等级IP40,箱体结构设计满足防尘、防小动物进入等要求,;

(3)安装户内,应有足够的机械强度和刚度,在起吊、运输和安装时不会变形或损伤,要求抗冲击能力强;

(4)箱内外拼接处要求满焊,接缝牢固,焊缝表面应成型均匀、致密,无裂缝,虚焊、焊透、焊穿、豁口、咬边、焊瘤、弧坑、咬边、气孔、夹渣等不良缺陷存在,外形美观、大方、协调。

(5)箱体门板平整,和框架间的间隙均匀,铰链转动灵活、牢固,有固定装置,箱体的门开启角度应大于120°。

(6)箱喷涂要求:防锈、颜色为RAL7035。保证使用寿命在20年。喷漆表面平整、均匀、细致、不允许有流痕,刷痕等缺陷,任何区域内不允许有漏喷现象。

其他要求

(1)SVG箱体在使用寿命期内,用户按正常条件使用产品,产品不会因温度变化导致设备出现损伤。

接地

(1)SVG箱体的接地系统应符合相关规范的要求。

(2)SVG箱体应设专用接地导体,该接地导体上应设有与接地网相连的固定连接端子,其数量不少于两个

绝缘要求

(1)箱体各器件的绝缘距离应满足相关规范电气间隙和爬电距离要求。

(2)SVG箱体内套管、隔板、活门、绝缘件等附件应为耐火阻燃材料。